
Voorgevel
Deze mooie projectgrond hebben wij verkocht aan een gerenommeerde Antwerpse projectontwikkelaar. Bij deze willen wij de nieuwe eigenaar feliciteren en succes toewensen met de realisatie.
Het project is vergund voor nieuwbouw appartementsgebouw van 39 appartementen met 54 ondergrondse staanplaatsen en bergingen. Lift aanwezig op elke verdieping.

Achtergevel
Omschrijving
Het project is een nieuwbouw gelegen in Deurne Noord op een boogscheut van het Bosuil stadion, de thuisbasis van R.A.F.C..
Indeling
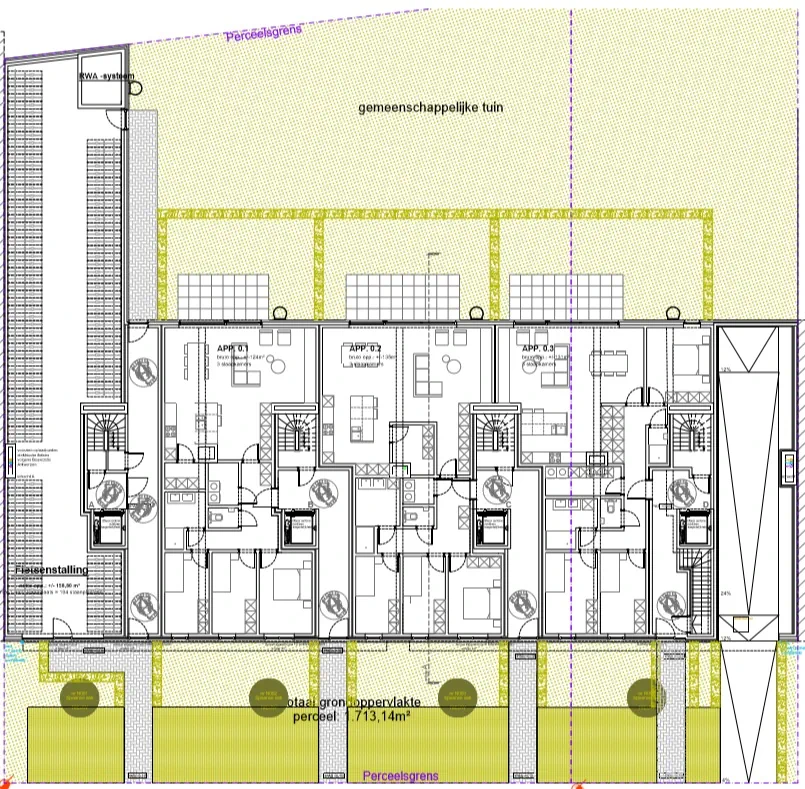
Gelijkvloers

- 1x 3-slaapkamer appartement van 124m┬▓ met terras/tuin
- 1x 3-slaapkamer appartement van 131m┬▓ met terras/tuin
- 1x 3-slaapkamer appartement van 135m┬▓ met terras/tuin
- Fietsenstalling voor 104 fietsen
1e 2e 3e 4e verdieping telkens per verdiep

- 4x 1-slaapkamer appartementen van 79m┬▓ met terras
- 2x 2-slaapkamer appartementen van 89,6m┬▓ met terras
- 1x 2-slaapkamer appartement van 90m┬▓ met terras
- 1x 2-slaapkamer appartement van 92,6m┬▓ met terras
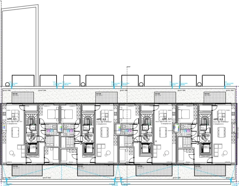
5e verdieping (dakverdieping)

- 2x 2-slaapkamer appartementen van 89,2m² met  2 terrassen
- 2x 2-slaapkamer appartementen van 97,8m┬▓ met 2 terrassen
Kelder verdiepingen


- -1: 27 parkeerplaatsen en bergingen
- -2: 27 parkeerplaatsen
Elk appartement heeft zijn eigen berging en ondergrondse autostaanplaats(en).
Omgeving
- Bakker: 1,5km
- Supermarkt/kruidenier: 150m
- Apotheek: 1,3km
- School: 1,5km