Het woonerf met 6 halfopen woningen in Malle (Antwerpen) is volledig verkocht!

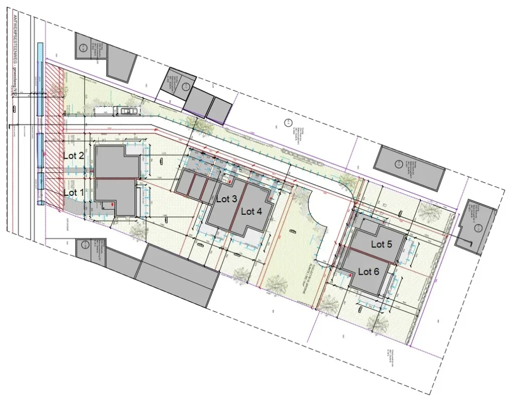
Woonerf voor het bouwen van 6 halfopen woningen met privatieve tuinen en garages in een privaat domein van 37 are met een groenzone van 3,5 are voor gemeenschappelijk gebruik.

Omschrijving

De vergunning is verleend voor 6 halfopen eengezinswoningen met parkeerplaatsen.

  • Lot 1: 4,4 are
  • Lot 2: 4,4 are
  • Lot 3: 2,8 are
  • Lot 4: 3,3 are
  • Lot 5: 4,5 are
  • Lot 6: 4,5 are
  • Groenzone van 3,5 are

Omgeving

  • Openbaar vervoer: voor de deur
  • Bakker: 800m
  • Supermarkt/kruidenier: 750m
  • Apotheek: 750m
  • School: 900m

Ontvang vrijblijvend meer informatie