Bouwgrond te Brasschaat, verkaveld in 2 percelen voor halfopen bebouwing
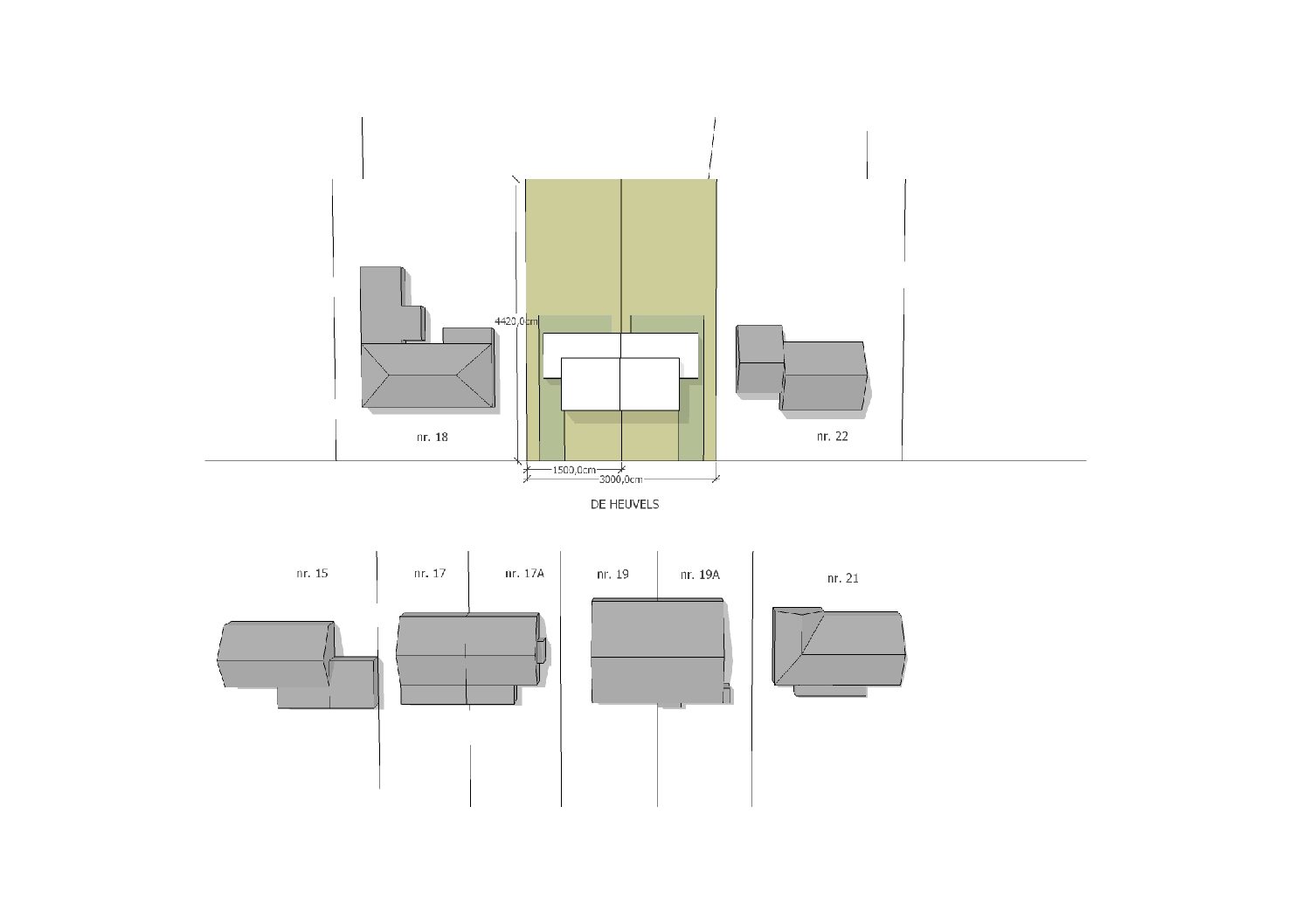
Bouwgrond in doodlopende straat , De Heuvels 20, 1327m², verkaveld in 2 gronden voor HOB bebouwing, tuinen met zicht op achterliggende velden

Ontvang vrijblijvend meer informatie